热点推荐

查看: 44491|回复: 13
收起左侧

[施工探讨] 儿子的舒适婚房通过老房改造一样可以实现!

  [复制链接]

10

回帖

15

发帖币

41

拼车币
发表于 2020-5-8 15:19:36 | 显示全部楼层 |阅读模式
    开贴啦!开贴啦!上个月28号开工的,因为一直忙着,直到今天才好好地坐下来开贴,好好地记录一下老房改造的整个历程。我的这套房子是买的二手房,一共两套,现在的设计方案是两户打通。为什么会买呢,一是现在房价高,正好呢又有契机,就买了二手的,想着反正重新装修了一样住嘛;二是儿子大了,到了结婚的年纪,女方家里又催得紧,所以就买下来准备两户打通给儿子一个大一点的婚房。我们夫妻两个人以前的房子就是朋友装修公司装修的,装修效果令我们感到很满意,所以这一次毫不犹豫的再次选择他们家来为我的儿子打造一个现代舒适的家居环境。儿子一直都是在国外一个人生活,很不容易,今年毕业了刚回到我们的身边,因此我们想给他一个宽敞明亮,设计风格别致的婚房,给他门小夫妻俩一个比较舒适的居住环境,所以我们还是选择了老房重新装修。

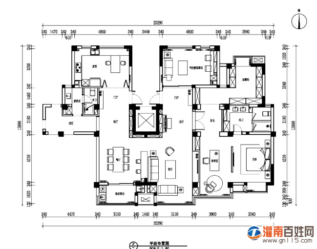
奉上原始图、平面方案图以及效果图供大家品鉴
微信图片_20200508151717.png
微信图片_20200508151834.png




72

回帖

5

发帖币

306

拼车币
发表于 2020-5-8 15:32:25 | 显示全部楼层
楼主多多更新哦

74

回帖

4

发帖币

266

拼车币
发表于 2020-5-8 15:34:44 | 显示全部楼层
飘过,没抢到沙发

68

回帖

11

发帖币

268

拼车币
发表于 2020-5-8 15:34:54 | 显示全部楼层
赞赞赞
回复

使用道具 举报

69

回帖

7

发帖币

244

拼车币
发表于 2020-5-8 15:34:58 | 显示全部楼层
{:7_741:}
回复

使用道具 举报

39

回帖

2

发帖币

139

拼车币
发表于 2020-5-8 15:35:26 | 显示全部楼层
{:7_727:}
回复

使用道具 举报

39

回帖

11

发帖币

151

拼车币
发表于 2020-5-8 15:35:30 | 显示全部楼层
{:7_745:}
回复

使用道具 举报

37

回帖

8

发帖币

136

拼车币
发表于 2020-5-8 15:35:40 | 显示全部楼层
装修顺利
回复

使用道具 举报

您需要登录后才可以回帖 登录 | 十秒注册 |

本版积分规则