热点推荐

查看: 36782|回复: 9
收起左侧

[施工探讨] 新家开工~谢谢你们让我在最好的季节又多了一个期待

  [复制链接]

37

回帖

8

发帖币

136

拼车币
发表于 2020-5-6 11:17:30 | 显示全部楼层 |阅读模式
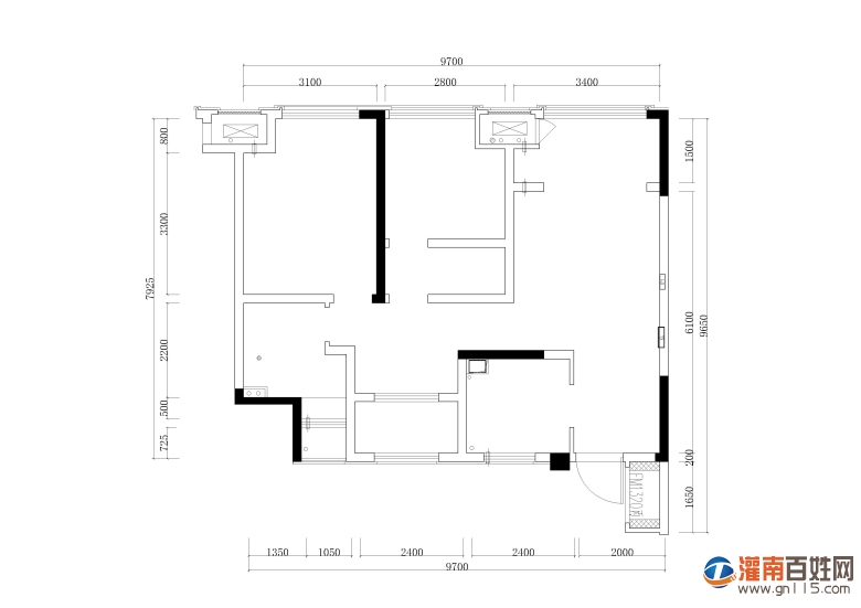
           赶在六一节前定了装修,其实还挺赶的,对新家充满了期待,吃饭吃饭有空再来说说,装修没有太多精力跟时间,于是选择了装修公司,在定装修之前我们也参观了邻居家的装修,他们家的装修风格怎么说呢不是我的菜吧,也算是借鉴借鉴。比较了几家装修公司之后选择了现在的这家公司,他们的特点不外包这点我比较看重,任何事情能找到责任人总归能找到解决的办法,再说设计师很投机,她说的点都是我想要的,看了她的方案之后就定了她家了,考虑事情很全面让我很信任这点很重要,开个帖见证家的完美蜕变也跟网友们分享分享经验。
373506_154693698917040648.jpg

72

回帖

5

发帖币

306

拼车币
发表于 2020-5-6 11:22:29 | 显示全部楼层
楼主多更新哦

74

回帖

4

发帖币

266

拼车币
发表于 2020-5-6 11:22:38 | 显示全部楼层
{:7_727:}
回复

使用道具 举报

68

回帖

11

发帖币

268

拼车币
发表于 2020-5-6 11:22:43 | 显示全部楼层
{:7_725:}
回复

使用道具 举报

69

回帖

7

发帖币

244

拼车币
发表于 2020-5-6 11:23:06 | 显示全部楼层
{:7_723:}
回复

使用道具 举报

39

回帖

2

发帖币

139

拼车币
发表于 2020-5-6 11:23:11 | 显示全部楼层
{:7_754:}
回复

使用道具 举报

39

回帖

11

发帖币

151

拼车币
发表于 2020-5-6 11:23:17 | 显示全部楼层
{:7_739:}
回复

使用道具 举报

37

回帖

8

发帖币

136

拼车币
 楼主| 发表于 2020-5-6 11:24:02 | 显示全部楼层
{:7_747:}
回复

使用道具 举报

您需要登录后才可以回帖 登录 | 十秒注册 |

本版积分规则