热点推荐

查看: 3775|回复: 4
收起左侧

[施工探讨] 一房两人一猫,与先生一起打造90后的家。

  [复制链接]

68

回帖

11

发帖币

268

拼车币
发表于 2020-4-27 14:04:49 | 显示全部楼层 |阅读模式
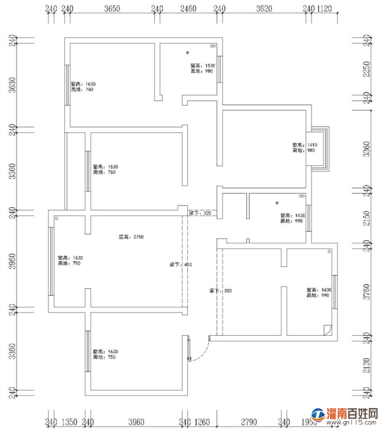
        家里开工已经20天了  我才想到有必要开个帖子记录一下这三个月的点点滴滴,这套房子是准备久住的,所以选了一个自己很喜欢的风格简美风,因为想要好好装修,所以装修公司也要找好一点的,来来回回跑了好几家公司,最后让我都满意的就是某某家了,他们公司的设计师全程都很细心的在帮我设计,考虑的也很全面服务也很好。开头我也不废话了,说再多还不如上图有用,原始布局图看一下
                           1210_3010291_6cb84800bb5c64e1.jpg

69

回帖

7

发帖币

244

拼车币
发表于 2020-4-27 14:06:27 | 显示全部楼层
{:7_778:}
回复

使用道具 举报

68

回帖

11

发帖币

268

拼车币
 楼主| 发表于 2020-4-27 14:06:53 | 显示全部楼层
飘过~~~~~~
回复

使用道具 举报

72

回帖

5

发帖币

306

拼车币
发表于 2020-4-27 14:07:49 | 显示全部楼层
幸福呀~
回复

使用道具 举报

74

回帖

4

发帖币

266

拼车币
发表于 2020-4-27 14:08:25 | 显示全部楼层
给你竖大拇指,棒!!!!!
您需要登录后才可以回帖 登录 | 十秒注册 |

本版积分规则